AMP17024048L DAB 線性功率放大器模組
高線性 × 雜散抑制 × 多載波驅動專用 DAB 放大器模組
AMP17024048L 為 Becker 所推出之小型化放大器模組,專為專業數位音訊廣播(DAB, Digital Audio Broadcasting)應用而設計,此模組具備堅固的電氣與機械設計,可長時間穩定運作;內建濾波器與低雜訊電壓供應電路,具備優異的雜散訊號抑制能力。
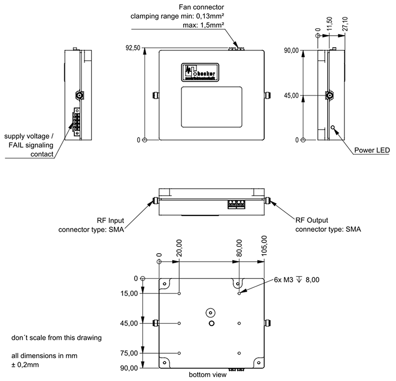
為避免安裝時損壞,電源具備反接保護功能,模組由單一路直流電壓供電,並透過模組上的 LED 指示燈顯示電源與狀態訊號。RF 連接器為 SMA 母頭;模組設計需外接散熱器;AMP 系列所有放大器皆採用 50 Ohm 技術設計。
產品特點
- 小型化設計
- 高動態範圍
- 電流與溫度監控
- 狀態指示功能
- 電源反接保護
- 提供對應散熱器(可選配)
應用場景
- 發射端放大器(TX Amplifier)
- 數位音訊廣播(DAB)
- 多載波系統(Multicarrier)
- 中繼器(Repeater)
- 輻射電纜驅動器(Radiating Cable Driver)

高線性與多載波支援
此放大器模組具備優異的第三階交互調變點(IP3)特性,適用於需放大數位調變訊號或多載波訊號的專業應用環境,不產生失真效應。
內建的自我監控功能可持續量測電流與溫度;當超過容許範圍時,模組透過開漏輸出(Open Drain)腳位傳遞狀態訊號,可由外部控制器讀取模組是否異常。
負載耐受設計
使用餘裕充足的功率電晶體,即使在非匹配負載條件(如反射功率、開路或短路)下也能維持穩定與安全的輸出特性。
堅固外殼與抗干擾能力
放大器模組採用鋁合金銑削外殼,可有效防止機械損壞,並具備優異電磁遮蔽效果,避免環境中無線電訊號造成的 EMI 影響;標準版本為安裝於使用者提供的散熱器,亦可選配相容之專用散熱器(型號:UHS-1)。
技術規格

效能


外觀

尺寸

PIN 腳位定義(DC / STATUS)
採用浮動接點設計

散熱器整合
建議搭配 UHS-1 通用散熱器 安裝使用,可有效提升熱管理效能。

相關產品




